0
fr
IMMO 3 POINTS Agence
Télécharger la fiche

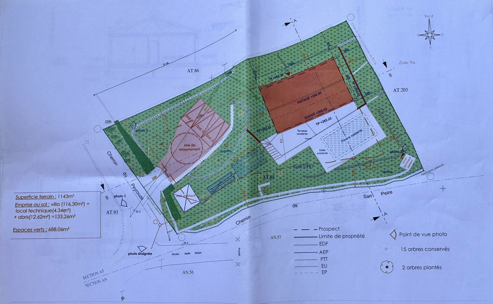
Terrain 1143 m² 1143 m²

Saint-Jeannet (06640)
399 990 € Référence 31

A propos de ce bien

ST JEANNET / TERRAIN PLAT (avec permis accepté et purgé de tout recours) 1143m²
EXCLUSIVITE

Vue dégagée collines au calme absolu à 2 minutes du centre ville de st Jeannet, et à une vingtaine de minutes de Nice et son aéroport.

Magnifique terrain plat avec permis de construire validé pour une maison plain pied d'une surface de 116m² d'emprise au sol, avec conservation de la grande piscine actuelle.

Terrain viabilisé, Raccordement au tout à l'égout déjà existant.

Projet clés en main

Caractéristiques de ce bien

  • terrain 1 143 m²
  • exposition Sud
  • vue dégagée, collines,
  • arboré
  • accès handicapé

Diagnostics énergétiques

Consommation énergétique
A B C D E F G
Emission de gaz à effet de serre
A B C D E F G
DPE ANCIENNE VERSION

Informations financières

Prix de vente honoraires TTC inclus 399 990 €

Calcul des mensualités

* Champs obligatoires