0
fr
IMMO 3 POINTS Agence
Télécharger la fiche

Studio 1 pièce(s) 34.39 m²

Nice (06000)
215 000 € Référence 107

A propos de ce bien

SOUS OFFRE ACCEPTEE

Très belle adresse sur Hôtel des Postes côté Galeries Lafayette MASSENA.

Appartement à rénover, idéal pied à terre mais aussi investissement locatif.

Possibilité de faire un deux pièces avec balcon orienté sud / sud-est dans l'hypercentre, commerces, sites touristiques et plage accessibles à pied !!

Lumineux, belle hauteur sous plafond, une fois un vrai coin nuit réalisé, ce bien peut devenir une résidence principale dans un bel immeuble bien tenu avec un emplacement privilégié au centre ville tout en étant au calme et avec un extérieur.

Vous réaliserez une plus value en capital en créant ce coin nuit, avec une sécuristaion de votre patrimoine compte tenu de la qualité de l'emplaceement et de l'immeuble.

Cave en ss-sol en sus au prix de 4000€

Caractéristiques de ce bien

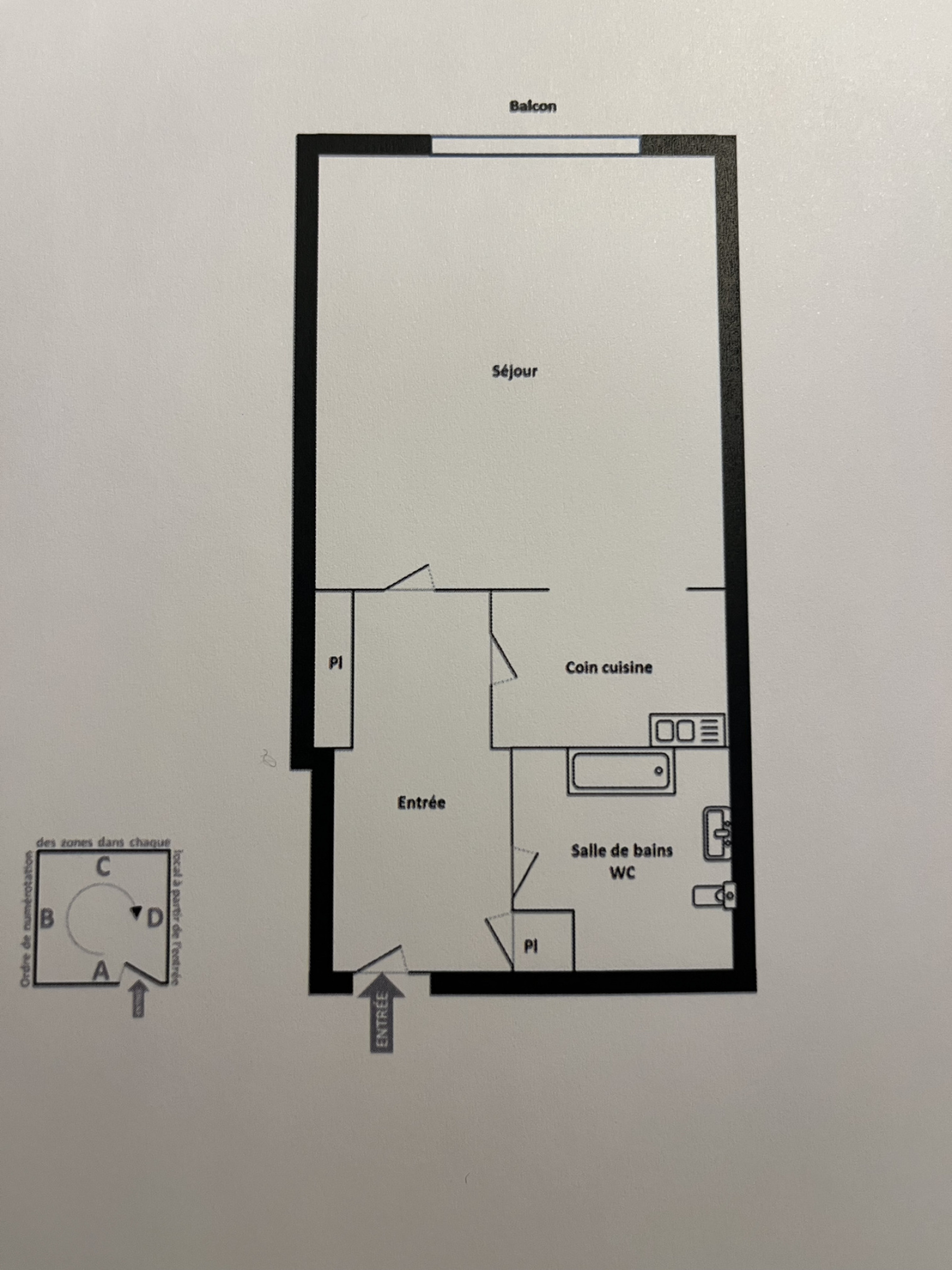
  • Surface 34,39 m²
  • séjour 19 m²
  • 1 salle(s) de bain
  • construit en 1970
  • kitchenette (semi-équipée)
  • Chauffage collectif : chaudière (fioul)
  • exposition Sud-Est
  • 2 côté(s) mitoyen(s)
  • 3ème étage
  • 5 étage(s)
  • vue Cours intérieure
  • cave
  • terrasse
  • interphone
  • quartier carré d'or

Diagnostics énergétiques

Consommation énergétique
A B C D E F G
Emission de gaz à effet de serre
A B C D E F G

Montant estimé des dépenses annuelles d'énergie pour un usage standard est compris entre 620 € et 900 € . Prix moyens des énergies indexés sur les années 2021, 2022 et 2023 (abonnements compris).

Informations financières

Prix de vente 215 000 € Les honoraires d'agence seront intégralement à la charge du vendeur
Charges 95,65 €
Taxe foncière annuelle 965 €
Taxe d'habitation 1 462 €

Informations de copropriété

Copropriété Oui
Lot n° 262
Nombre de lots 181
Quote part annuelle des charges 1 104 €
Plan de sauvegarde Non
Statut du syndic Pas de procédure en cours

Calcul des mensualités

* Champs obligatoires